Duplex
€ 354.799

Driesstraat 41, 9500 Geraardsbergen
    • delen
Dit pand maakt deel uit van DRIES

Omschrijving Ref.: 7573816

Nieuwbouw duplex met 2 slaapkamers en 2 terrassen


*Start opbouw voorzien 03-2026*
Wonen in alle rust, met alles binnen handbereik?
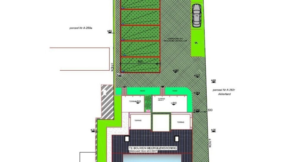
In het landelijke Idegem te Driesstraat 41, deelgemeente van Geraardsbergen, verrijst een kleinschalig en stijlvol nieuwbouwproject op een steenworp van het centrum. Je vindt er alles wat je nodig hebt op wandelafstand: een bakker, slager, school en het treinstation.

Het project omvat zes appartementen met één of meerdere terrassen, afgewerkt met oog voor kwaliteit en duurzaamheid. Er is ook telkens een berging en een garage met automatische poort en aansluiting voor een laadpaal per appartement voorzien (verplicht mee aan te kopen). Daarnaast zijn er ook nog twee extra parkeerplaatsen.

Comfort en energiezuinigheid staan voorop. De appartementen worden voorzien van privatieve zonnepanelen, vloerverwarming met warmtepomp en gebouwd volgens de strengste normen voor thermische én akoestische isolatie.

Dit is een unieke kans om te wonen in een rustige omgeving zonder in te boeten aan bereikbaarheid of comfort.

Wil je graag meer weten of een bezoek inplannen? Neem nu contact op.

Prijs excl. verkooprechten (grond), BTW (constructie).

VCRO: Wg/Gvkr/Vg/Gvv/Gmo - G-score: onbekend, P-score: A.


Uw contact

Robin Nysters 0489 14 55 42
contact

Details van het pand

Financieel

Prijs
€ 354.799,00
Beschikbaarheid
Bij oplevering

Ligging

Buurt
Rustig, landelijk

Gebouw

Bewoonbare oppervlakte
119,00 m²
Aantal gevels
3
Verdiep
2
Gevelbreedte
7,80 m
Oriëntatie voorgevel
Zuidoosten

Terrein

Oriëntatie terras 1
Zuidoosten

Indeling

Keuken
12,00 m², volledig geïnstalleerd
Bureau
7,40 m²
Slaapkamer 1
18,40 m²
Slaapkamer 2
10,40 m²
Badkamer 1
6,40 m²
Douchekamers
1
Toiletten
2
Wasplaats
Ja
Kelder
Ja

Comfort

Gemeubeld
Nee
Videofoon
Ja
Lift
Ja

Energie

EPC
Dubbele beglazing
Thermische en akoestische onderbreking
Ramen
Aluminium
Type verwarming
Warmtepomp
Verwarming
Individueel

Technieken

Elektriciteit
Ja
Riolering
Ja
Water
Ja

Stedenbouw

Bestemming
Woongebied
Bouwvergunning
Ja
Verkavelingsvergunning
Nee
Voorkooprecht
Nee
Dagvaarding
Nee - geen rechterlijke herstelmaatregel of bestuurlijke maatregel opgelegd
O-peil
Niet gelegen in een overstromingsgevoelig gebied
G-score
A
P-score
A
Watergevoelig openruimtegebied
Nee
Vonnissen
Nee

Meer info over deze eigendom

Bedankt voor je bericht, we contacteren je zo spoedig mogelijk.
Er was een probleem bij het versturen van het formulier, gelieve opnieuw te proberen.
(*) Gelieve de verplichte velden in te vullen.